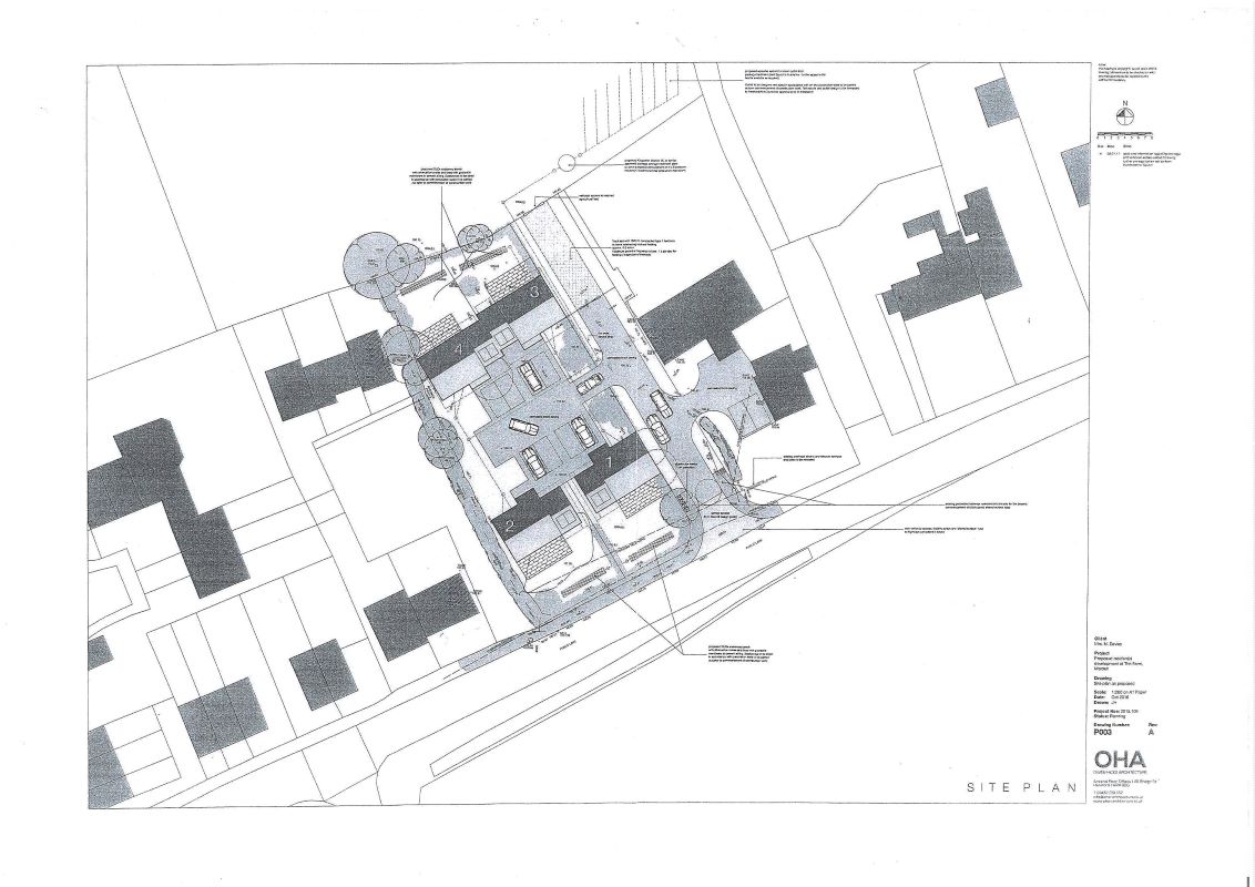
A small and select development site for four contemporary properties offering 3-bedroom accommodation together with a substantial block of strategically positioned accommodation land lying to the rear of the site and skirting adjoining dwellings.
The proposed properties each have approximately 110 square metres gross external floor, excluding garaging, and will benefit from a fine outlook and reasonable sized gardens.
Situation
The development site is situated in the popular village of Marden some 5 miles north of Hereford. The village has the benefit of an excellent range of modern facilities including Primary School, Post Office, Church, Community facilities and a regular bus service to and from Hereford.
Accommodation:
Accommodation of each of the completed properties comprises; Reception Hall, Cloakroom with WC, Living Room, Kitchen, Dining Room, stairway to first floor Landing, Master Bedroom with En Suite, 2 further Bedrooms and family Bathroom. Outside there are gardens and attached garaging.
Planning Permission
Planning Permission was granted on the 4th April 2017 under Application Number 170368. This is full Detailed Planning, copies of the Planning Permission and proposed house designs are available upon request, although they are in accordance with the attached plan and brief scheme details.
Pre-Commencement Conditions have been discharged, the details of which have been confirmed by Herefordshire Council in correspondence of 6th March 2020. In addition, the Building Notice has been issued by Building Control, recording the commencement of works. Details of both are available upon request.
The Land:
The land is well fenced pasture land with a water supply that runs through the development site. There is an independent access, as identified on the attached plan, however, this is width restricted.
Additional Information
All rights for the provision of visibility splay have been retained by the Vendors.
The owner of the property known as The Farm, immediately to the east, will have a right of access over the proposed new road together with maintenance obligations. Details of which will be contained within the contract.
Services:
Details of the Non Mains Sewerage for new dwelling units is available on the Herefordshire Council website under the planning code or from our offices. In this case, the property will have an independent sewage treatment package situated within the development site with drainage provision on the land immediately to the rear, as identified on the plan.
It is our understanding that mains electricity and water are available on the highway. Buyers should make their own enquiries with the relevant authorities.
Viewing:
By calling by the site at any reasonable time. The land is currently let out on a Grazing Agreement so please be mindful of stock and ensure that gates are closed. Please also respect the privacy of the occupiers of the adjoining property known as The Farm.
Mode of Sale
The property is to be offered For Sale by Online Auction. The Auction will open from 12 noon – 6 pm on Thursday 13th August 2020 (unless previously sold). The Vendors reserve the right to accept an offer prior to the Auction.
The Purchaser(s) will be required to pay a 10% deposit to the Vendors' Solicitors within 24 hours of the auction with the balance of the monies within 28 days.
Contract:
A copy of the Contract and any Special Conditions of Sale, which the sale is subject to, will be made available on the Agents Online Auction webpage:
www. onlineauctions.sunderlands.co.uk
Agent's Note:
Any plans used in the preparation of these details may have been reduced in scale an any interested parties should check with the Title Plan before proceeding to purchase.
Full details of Planning Consent, Pre Commencement Approval, Building Control Notices, etc., are available upon request. We understand that the Utility searches are also being undertaken by the Vendor and will be available via the contract package, however, potential purchasers may wish to make their own enquiries.
Directions
Leave Hereford travelling north on the A465 Aylestone Hill Road. Upon reaching the roundabout proceed straight ahead (signposted Sutton St Nicholas). Continue for 3 miles passing through the village. After 2 miles take the left hand turn (signposted Marden) The site can be found on the right hand side indicated by the For Sale sign.
Wayleaves, Easements & Rights of Way
The property is sold subject to and with the benefit of all easements, quasi easements, wayleaves and rights of way both declared and undeclared.
Site Plans
The plans included in the sale particulars are for identification purposes only and may have been reduced in scale to assist with printing.
Auction Guide/Reserve Price
Please note an Auction Guide Price is an indication by the Agent of the likely sale price and is not the same as a Reserve Price. The Reserve Price is the lowest price at which the vendor will consider a sale and is within or below the Guide Price/s. Both figures are subject to change.
Vendor's Solicitors
T.A. Matthews Solicitors, First Floor Office, Broadway House, 32-35 Broad Street, Hereford HR4 9AR FAO Derek Backhouse
Tel; (01432) 352121
Email: d.backhouse@tamatthews.co.uk
Directions
Leave Hereford travelling north on the A465 Aylestone Hill Road. Upon reaching the roundabout proceed straight ahead (signposted Sutton St Nicholas). Continue for 3 miles passing through the village. After 2 miles take the left hand turn (signposted Marden) The site can be found on the right hand side indicated by the For Sale' sign.
None of these statements contained in these particulars are to be relied upon as statements or representations of fact. These particulars are not an offer or contract or part of one. Floor plans are provided for guidance as to the layout of the property only. Room sizes and measurements are approximate only. Please note we have not tested the equipment, appliances and services in the property and interested parties are advised to commission appropriate investigation before formulating their offer.
Sunderlands are a member of the ‘Ombudsman for Estate Agents Scheme’ and therefore adhere to their Code of Practice. A copy of the Code of Practice is available on request.
* Generally speaking Guide Prices are provided as an indication of each seller's minimum expectation, i.e. 'The Reserve'. They are not necessarily figures which a property will sell for and may change at any time prior to the auction. Virtually every property will be offered subject to a Reserve (a figure below which the Auctioneer cannot sell the property during the auction) which we expect will be set within the Guide Range or no more than 10% above a single figure Guide.
Submit an enquiry and someone will be in contact shortly.
By setting a proxy bid, the system will automatically bid on your behalf to maintain your position as the highest bidder, up to your proxy bid amount. If you are outbid, you will be notified via email so you can opt to increase your bid if you so choose.
If two of more users place identical bids, the bid that was placed first takes precedence, and this includes proxy bids.
Another bidder placed an automatic proxy bid greater or equal to the bid you have just placed. You will need to bid again to stand a chance of winning.